建筑系
学生优秀作业
建筑设计专业
PART · 01 独立式小住宅改造设计

班级:20建筑设计2班
设计者:章峻豪 倪昕昱
指导老师:宋雯珺 黄琪
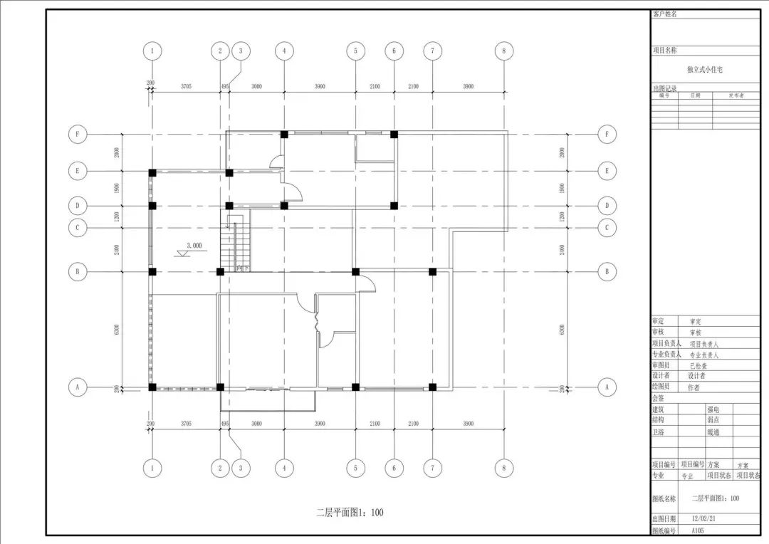
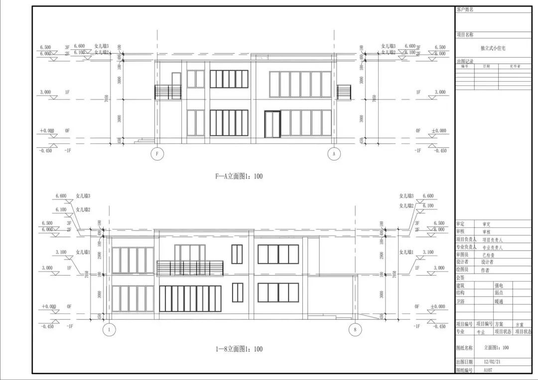
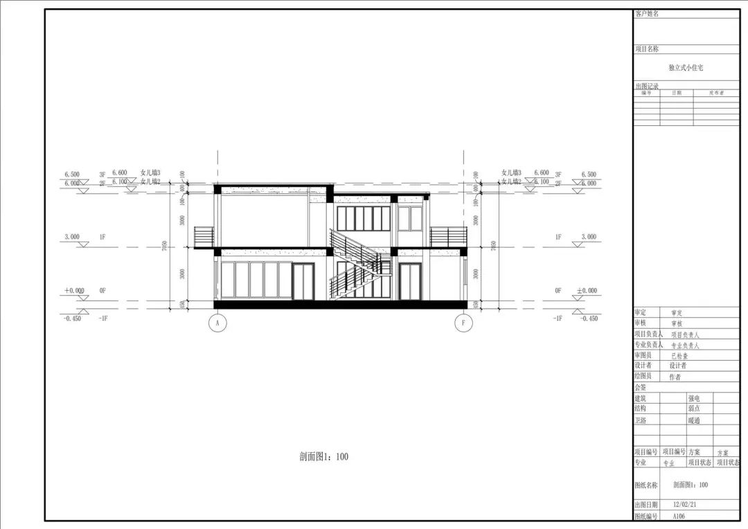
PART · 02 独立式小住宅建筑设计

班级:20建筑设计2班
设计者:倪昕昱
指导老师:宋雯珺 黄琪
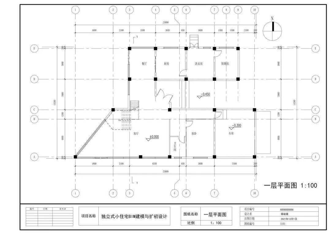
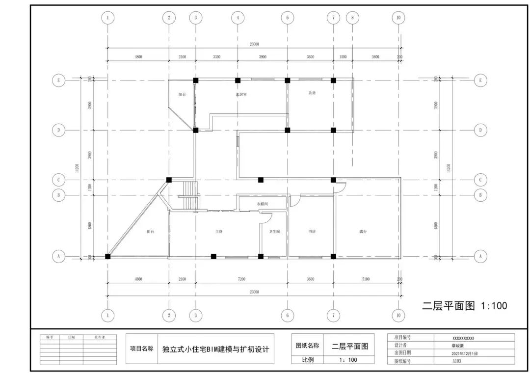
PART · 03 独立式小住宅建模与初扩





班级:20建筑设计2班
设计者:倪昕昱
指导老师:宋雯珺 黄琪
PART · 04 独立式小住宅建筑设计


班级:20建筑设计2班
设计者:梁妍
指导老师:黄琪 宋雯珺
PART · 05 独立式小住宅建筑设计


班级:20建筑设计2班
设计者:章峻豪
指导老师:宋雯珺 黄琪
PART · 06 独立式小住宅建模与初扩设计





班级:20建筑设计2班
设计者:章峻豪
指导老师:黄琪 宋雯珺
PART · 07 独立式小住宅建筑设计


班级:20建筑设计2班
设计者:刘旭
指导老师:黄琪 宋雯珺
PART · 08 独立式住宅设计


班级:20建筑设计创新班
设计者:黄溢静
指导老师:董晓霞
PART · 09 独立式小住宅设计


班级:20建筑设计创新班
设计者:查兰亭
指导老师:董晓霞
PART · 10 独立式小住宅设计


班级:20建筑设计创新班
设计者:张翰哲
指导老师:董晓霞
PART · 11小住宅建筑设计


班级:20建筑设计3班
设计者:王含硕
指导老师:段文婷
PART · 12 苏式庭院小住宅建筑设计


班级:20建筑设计3班
设计者:贺世恒
指导老师:段文婷
PART · 13 独立式小住宅建筑设计


班级:20建筑设计3班
设计者:倪铃茜
指导老师:段文婷
PART · 14 独立式小住宅建筑设计


班级:20建筑设计3班
设计者:郦雨琳
指导老师:段文婷
END